Hemmesta Bågar, Värmdö

Tävling, Industri, Hemmesta, Värmdö, 2024

Bland ljung och tallar på höjden bredvid Storskogen tronar sig Hemmesta Bågar upp. Vilande på två ben och en skog av pelare svävar vattentornet likt romarnas akvedukter över hällmarken.

Byggnaden utförs i rödpigmenterad betong som ger ett mjukt intryck och harmonierar med berget och naturen under årstidernas skiftningar. Den röda kulören återfinns i närområdets skärgårdsmiljöer och många befintliga byggnader, från skolan i Hemmesta till industribyggnaderna på Gustavsbergs porslinsfabrik.


Vattentornet består av klassiska formelement såsom rätblock, bågar, pelare och valv vilka tillsammans ger byggnaden dess skulpturala form. Detaljeringsgraden tonar ner den stora skalan och ger ett varierat och spännande uttryck när man rör sig nära byggnaden.

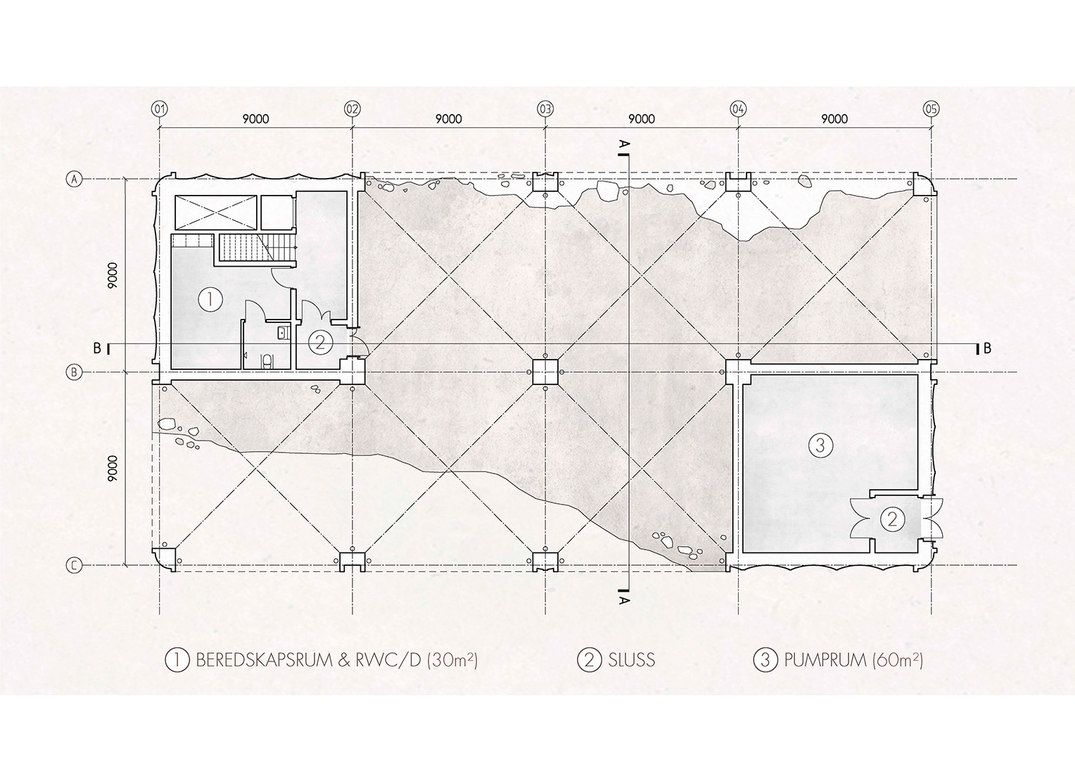
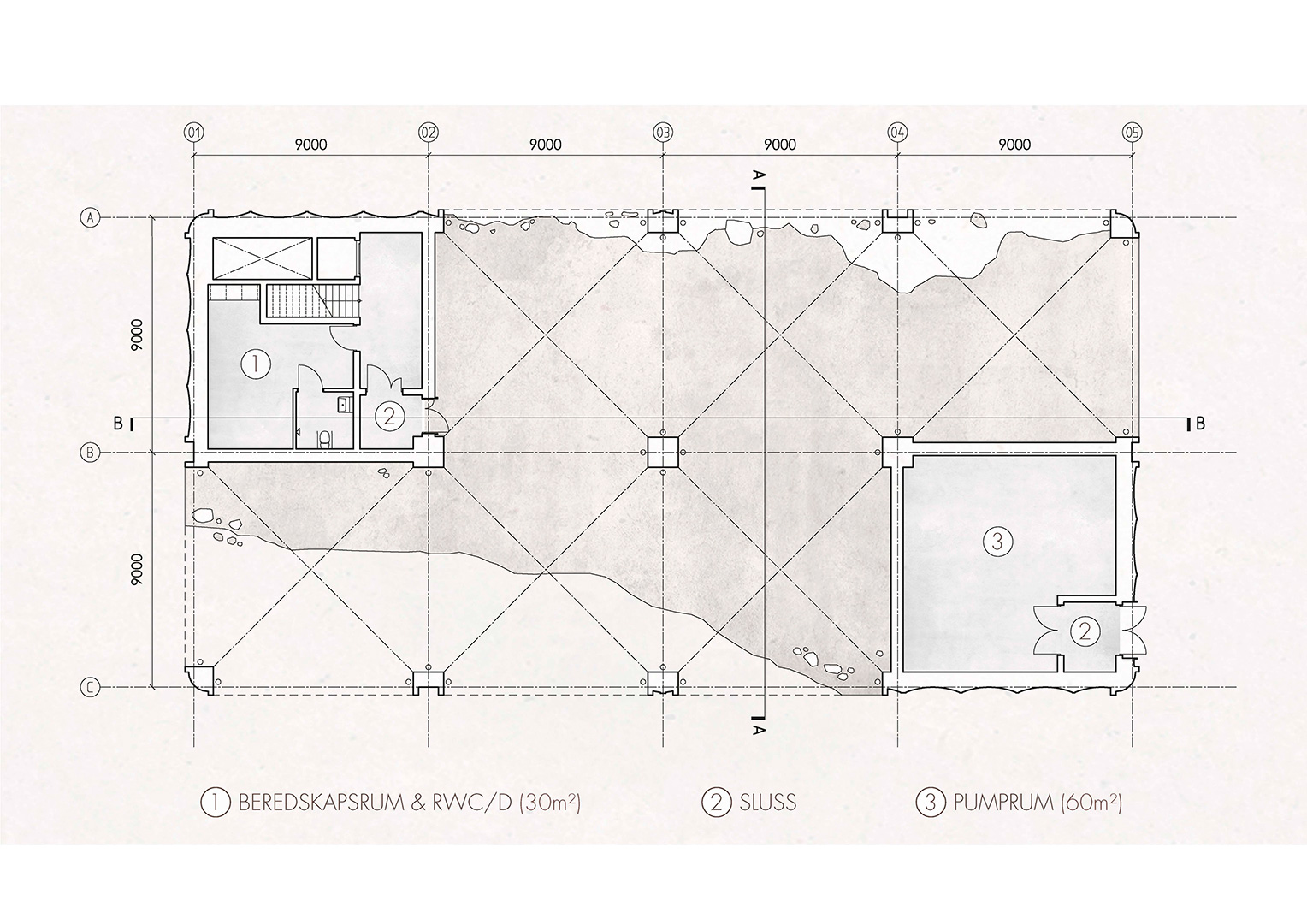
För att minimera inverkan i naturen är det endast under de två benen som det finns en pågjuten bottenplatta. Mellan pelarna får de vackra berghällarna råda. I och med platsens höga naturvärden anläggs det heller inga nya gångvägar utan besökaren leds upp av sin egen nyfikenhet endast lätt guidad av arkitektoniska element, omsorgsfullt placerade längs med platsens naturliga stråk, som utformas för att materiellt och formmässigt hänga ihop med vattentornet.

Väl uppe på toppen möts man av vattentornet och den vackra hällmarken. Landskapet kompletteras av en ensam ring av rödpigmenterad betong där kan man sitta och uppleva naturen och arkitekturen både som ensam vandrare eller som del av en skolutflykt.


Allmän tävling gällande nytt vattentorn i Hemmesta

Värmdö kommun.